HAUS HASELMEYER ST.PÖLTEN, 1998

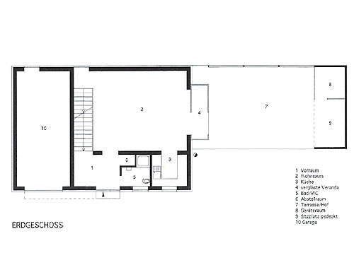
Ein einfacher, klarer Baukörper beherbergt in drei Etagen die erforderlichen Räumlichkeiten. Der erdgeschossige Bereich mit niveaugleichen Ausgang auf eine geräumige Gartenterrasse beinhaltet im wesentlichen die Küche und den Wohnraum, im Obergeschoss ist der Schlafraum mit Nassgruppe untergebracht. Im Baukörper eingeschnitten ist ein geräumiges Atrium, welches das Obergeschoß erweitert und einen uneinsehbaren und geschützten Freiraum bildet. An der Süd-Westseite angedockt wirkt ein zweigeschossiger Glaskörper im Sinne einer „traditionellen verglasten Veranda“ klimaregulierend und erweitert darüber hinaus den Wohnraum. Die Räumlichkeiten für Fitneß und Sauna sowie ein Gästezimmer befinden sich im Untergeschoß.